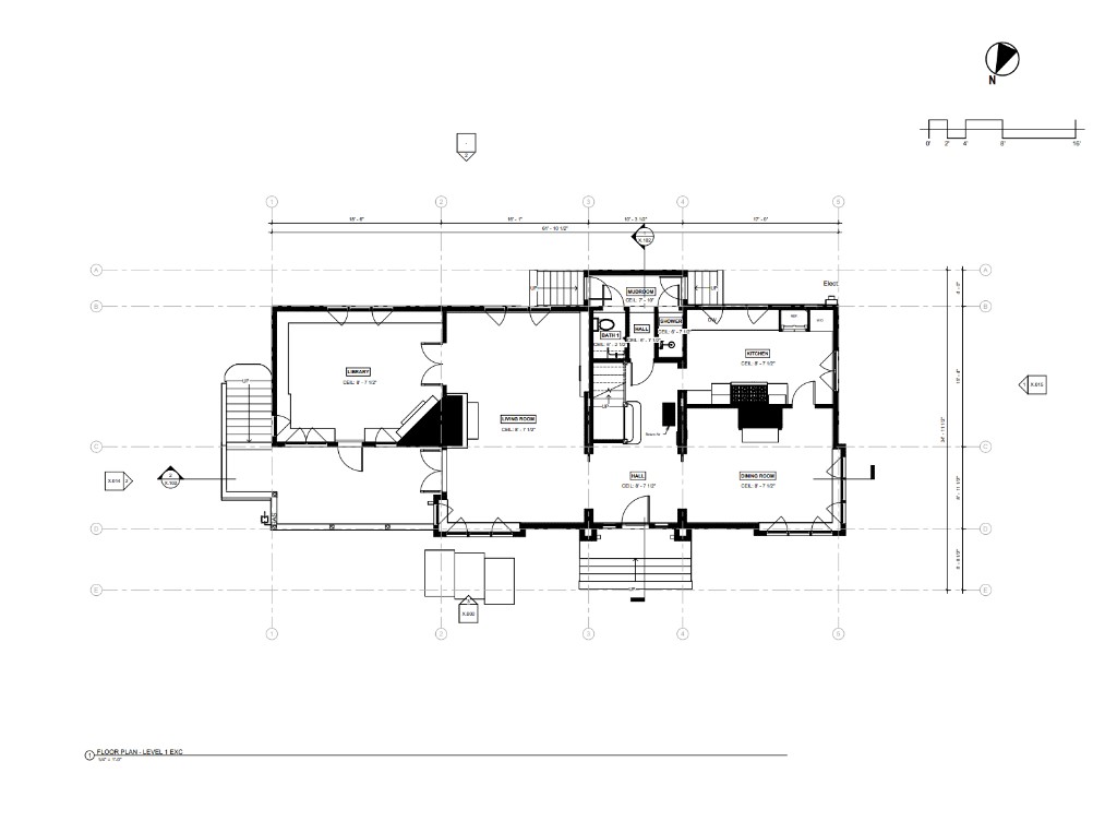
Floor plan drawing: Level 1 existing conditions, architectural linework and dimensions

Residential Existing Conditions Deliverables

Get an Existing Conditions Documentation Quote

With a week or so of engagement, residential existing conditions documentation clients receive a link to download digital assets based on their project scope. A list of assets and links to download or view samples can be found below:

  1. Basic 2D Existing Conditions
  2. 2D Interior Architecture Existing Conditions
  3. 3D Base Model Existing Conditions
  4. 3D House and Site Existing Conditions

Example asset types

Basic 2D Drawing Set

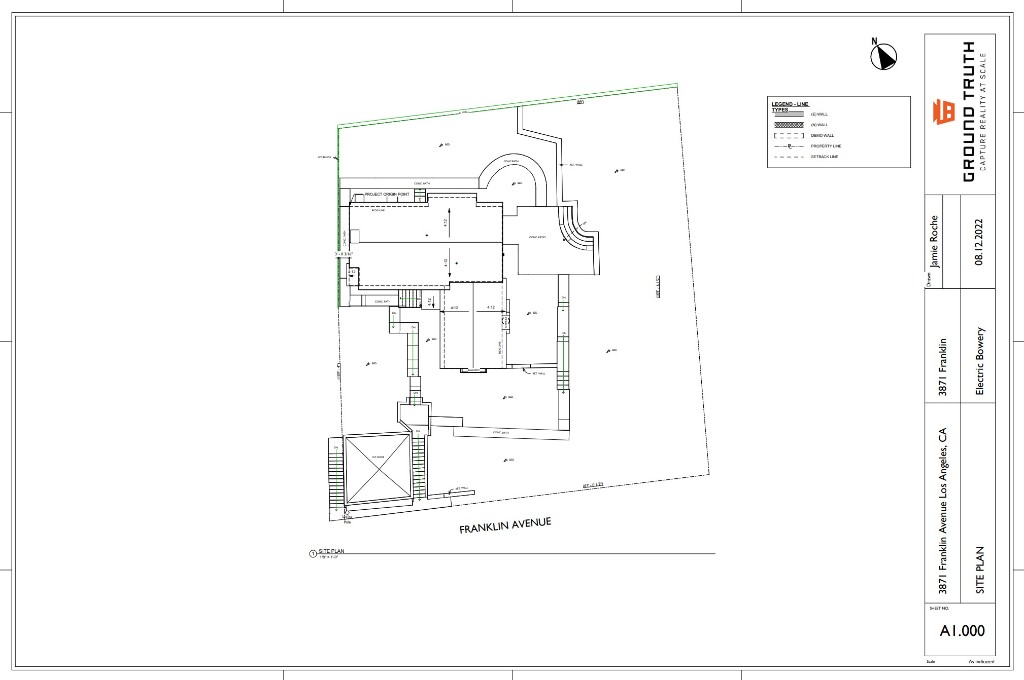
Existing conditions site plan sample with Ground Truth title block, sheet C0.000
  • Site Plan
  • Floor Plans
  • Reflected Ceiling Plans
  • Exterior Elevations
  • Sections
  • 360° Photos

Download sample

Interior Architecture 2D Drawing Set

Interior elevations sheet: office, kitchen, great room, family room, and master bath, sheet A0.400

Basic 2D Drawing Set plus:

  • ¼″ scale interior elevations

Download sample

3D Base Model Drawing Set

Site plan and 3D isometric views: existing conditions sample, sheet C0.000

Basic 2D Drawing Set plus:

  • 3D Revit Model LOD200
  • Hardscape adjacent to the building
  • Basic 3D site topography

Download sample

3D Base Model and Site Set

Sample site plan with topography and trees, 51 Broadview, San Rafael

Basic 2D Drawing Set plus:

  • Locations of retaining walls
  • Locations of trees > 4″ diameter
  • Models of pools, trellises, fences, and other significant site features

Download sample

Additional deliverables

The examples above represent the most commonly requested Ground Truth existing conditions documentation projects. We are excited to provide a wide range of additional modeling, rendering, and documentation deliverables as needed.

Ready to scope your project?

Get in Touch

PDF drawing set

Preview below. Download the sample for offline viewing or printing.

Download PDF

360° photo

Drag to Look Around

Get in Touch